مقدمة الخدمة:
في شركة القدح الهندسية VERTEX، نؤمن بأن كل مبنى عظيم يبدأ بفكرة، وتكتمل عظمته بتصميم يجمع بين روعة المظهر وقوة الجوهر. نحن لا نرسم مخططات فحسب، بل نصيغ نمط حياة ونبني أصولاً تدوم. يقدم فريقنا الهندسي حلولاً متكاملة تترجم رؤيتكم إلى واقع ملموس، مع ضمان أعلى معايير الأمان والجودة في كل خطوة.
التميز المعماري: حينما تلتقي الوظيفة بالجمال
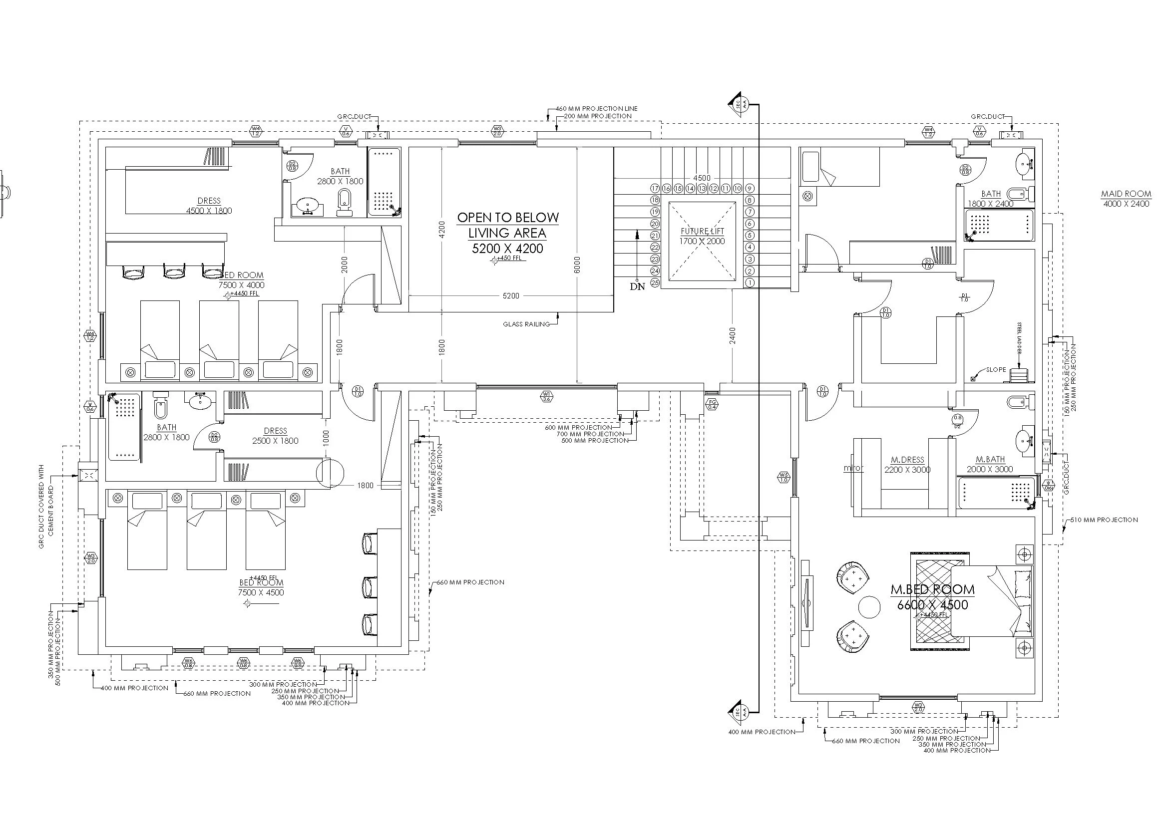
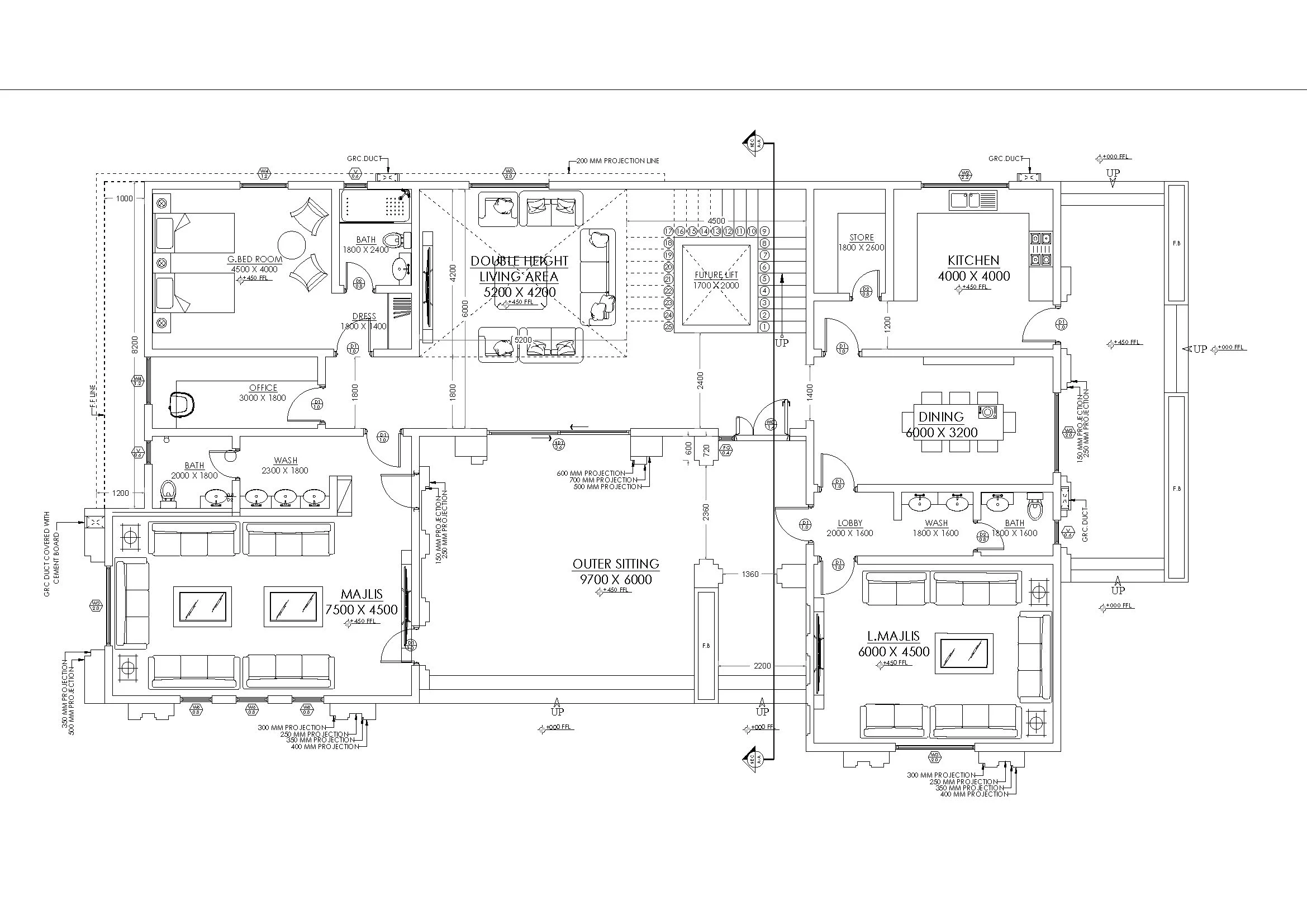
نبدأ رحلتنا معكم من فهم احتياجاتكم الخاصة وتطلعاتكم للمشروع. يحرص معماريو شركة القدح الهندسية VERTEX على تقديم تصاميم تتسم بـ:
-
الاستغلال الأمثل للمساحات: دراسة الحركة وتوزيع الفراغات بذكاء لضمان الراحة والرحابة، مهما كانت مساحة العقار.
-
هوية بصرية فريدة: تصميم واجهات خارجية مميزة (مودرن، كلاسيك، أو نيو كلاسيك) تعكس ذوقكم الخاص وتترك انطباعاً لا ينسى.
-
محاكاة الواقع (3D): تقديم مناظير ثلاثية الأبعاد تتيح لكم التجول في مشروعكم ورؤية التفاصيل والألوان ومواد الإكساء قبل البدء بالتنفيذ.
الأمان الإنشائي: أساس راسخ لمستقبل آمن
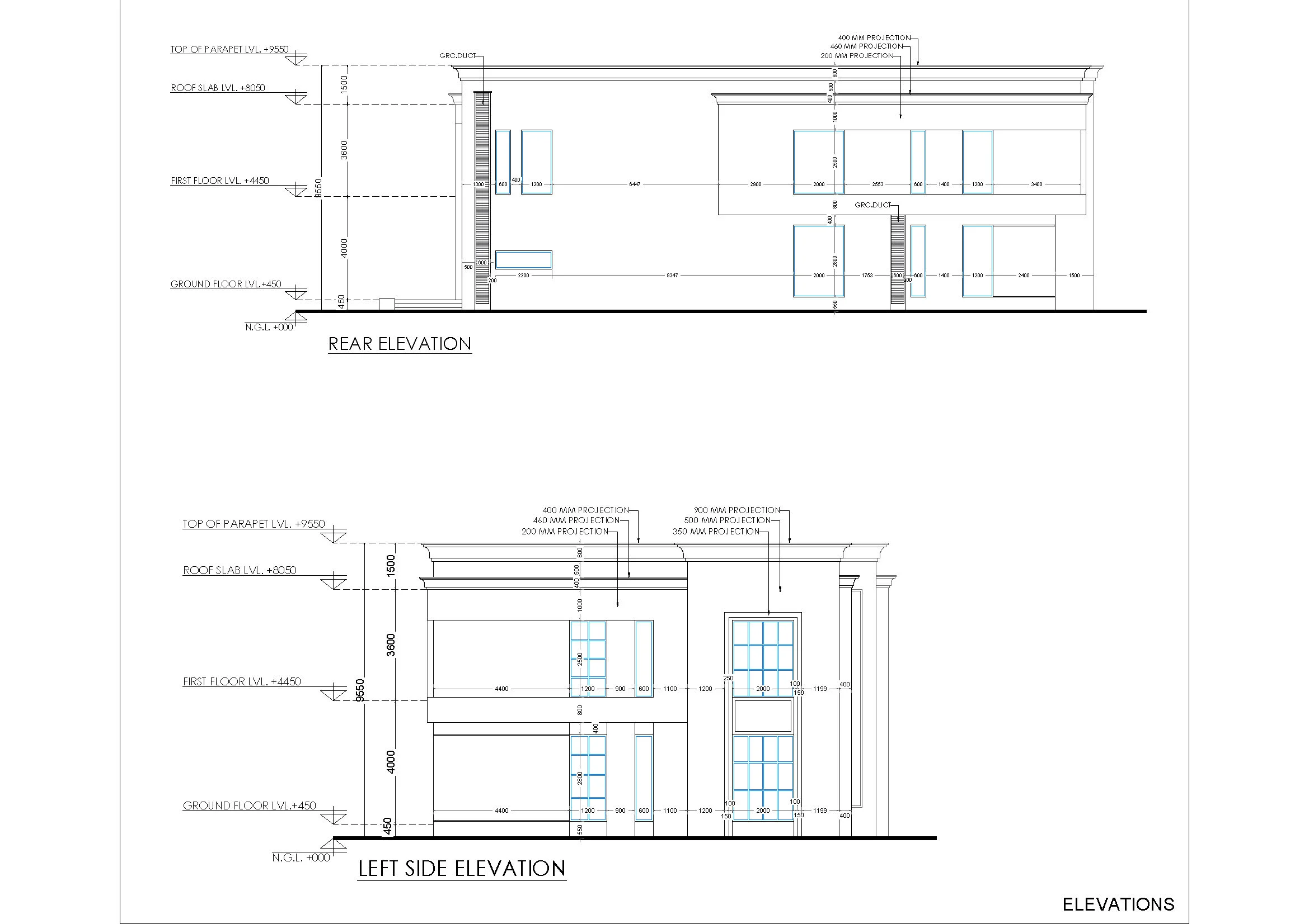
الجمال المعماري لا يكتمل إلا بمتانة إنشائية. يتولى مهندسونا الإنشائيون في شركة القدح الهندسية VERTEX تحويل الرؤية المعمارية إلى هيكل صلب وآمن، من خلال:
-
الالتزام بالكودات العالمية: تطبيق أحدث المعايير الهندسية وأنظمة البناء لضمان سلامة المنشأة ومقاومتها للعوامل المختلفة.
-
الدقة في الحسابات: إجراء دراسات دقيقة للأحمال والتربة لضمان استقرار المبنى وتقليل الهدر في مواد البناء (حديد وتسليح) دون المساس بالأمان.
-
مخططات تنفيذية شاملة: تسليم مخططات تفصيلية للأعمدة، القواعد، والأسقف، جاهزة للتنفيذ الفوري من قبل المقاولين دون أي غموض.
لماذا تختار تصاميم شركة القدح الهندسية VERTEX؟
-
التكامل الهندسي: نضمن توافقاً تاماً بين المخططات المعمارية والإنشائية لتجنب أي تعارضات أثناء التنفيذ.
-
حلول اقتصادية: نقدم حلولاً هندسية توازن بين التكلفة والجودة، لنحقق لكم أفضل نتيجة ضمن ميزانيتكم المحددة.
-
دعم فني مستمر: لا ينتهي دورنا عند تسليم الورق؛ نحن معكم لتقديم المشورة وتوضيح أي تفاصيل فنية يحتاجها الموقع.
هل أنت مستعد لبدء مشروعك؟
لا تترك حلمك مجرد فكرة. تواصل اليوم مع شركة القدح الهندسية VERTEX، ودعنا نضع حجر الأساس لمشروعك بتصاميم هندسية متقنة تضمن لك راحة البال واستثماراً ناجحاً.









